Vacation Homes
Vacation Homes
Vacation Homes at Jiminy Peak
- Located on the resort property are the condominium communities of Mountainside, Village Center, and Country Village. Ideal for larger families and groups: Spacious, well-appointed, and many with washer/dryers.
- 2 – 4 bedroom units on 1 or 2-levels, 1.5 – 2 full bathrooms, generous living rooms, queen sleeper sofa in Living Room, full kitchen, Cable/Satellite TV, plus storage.
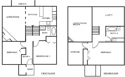
- 2 Bedroom 900 sq. feet of living space
- 3 Bedroom 1500 sq. feet of living space
- Registered guests receive a welcome text message before they arrive. Please text us with any requests. (413) 200-9809.
- No Daily room service, linen and towel exchanges will be available upon request.
- Please note that all units are privately owned and therefore each private home is uniquely decorated.
- There may be slight variations in layout depending on individual units and locations.
2 and 3 Bedroom Condos: First floor and second floor plans
Lodging Deposit & Cancellation Policy
Winter-weekends and holiday periods – 7 CP- We take one night of the total as a deposit when the reservation is made. If you need to cancel you need to do it at least 7 days prior to the arrival date and there is a 10% cancel fee of the total reservation. At 7 days prior to arrival, we take the remaining balance of your reservation. After this time period, it is non-refundable.
Winter-midweek-non holiday– 48 HOUR CP – We take one night of the total as a deposit when the reservation is made. If you need to cancel, you need to do that at least 48 hours or more prior to the arrival date and there would be a 10% cancellation fee of the total reservation. If you cancel within 48 hours of arrival, you are responsible for the total reservation.
Spring, Summer and Fall holiday periods -7 CP – We take one night of the total as a deposit when the reservation is made. If you need to cancel you need to do that at least 7 days prior to the arrival date and there would be a 10% cancel fee of the total reservation. Once we are within 7 days of arrival, you are responsible for the total reservation.
Spring, Summer and Fall non- holiday – 48 HOUR CP – We take one night of the total as a deposit when the reservation is made. If you need to cancel, you need to do that at least 48 hours or more prior to the arrival date and there would be a 10% cancellation fee of the total reservation. If you cancel within 48 hours of arrival, you are responsible for the total reservation.
Jiminy Peak rates based on double occupancy. Children 17 and under stay free. **We cannot accept pets**